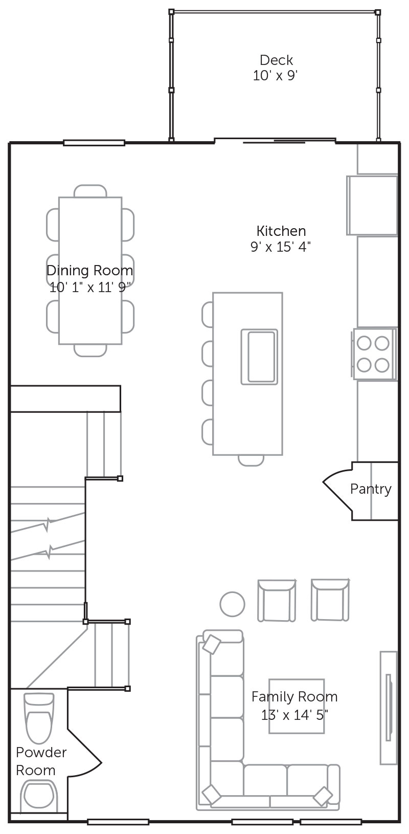
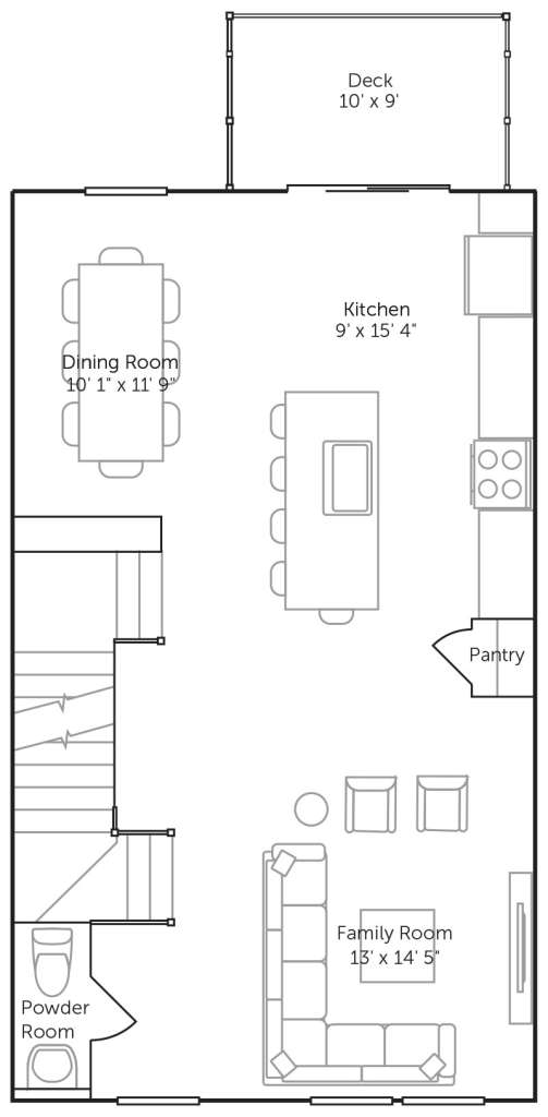
Floor Plans
Tydings II
1 Car Front Entry Garage
2,072 SF | 3 bedroom | 2.5 Bath
A flexible three-story front entry one car garage layout offering an open main level and well-sized bedrooms, plus multiple kitchen configuration options.
Key Features
- Entry Level
- Recreation Room
- Front-entry one car garage
- Fenced in rear yard
- Main Level
- Family Room
- Dining Room
- Kitchen
- Powder Room
- Pantry
- Bedroom Level
- Owner’s suite with walk-in closet and bathroom
- Bedroom 2
- Bedroom 3
- Second full bath
- Laundry with washer and dryer
