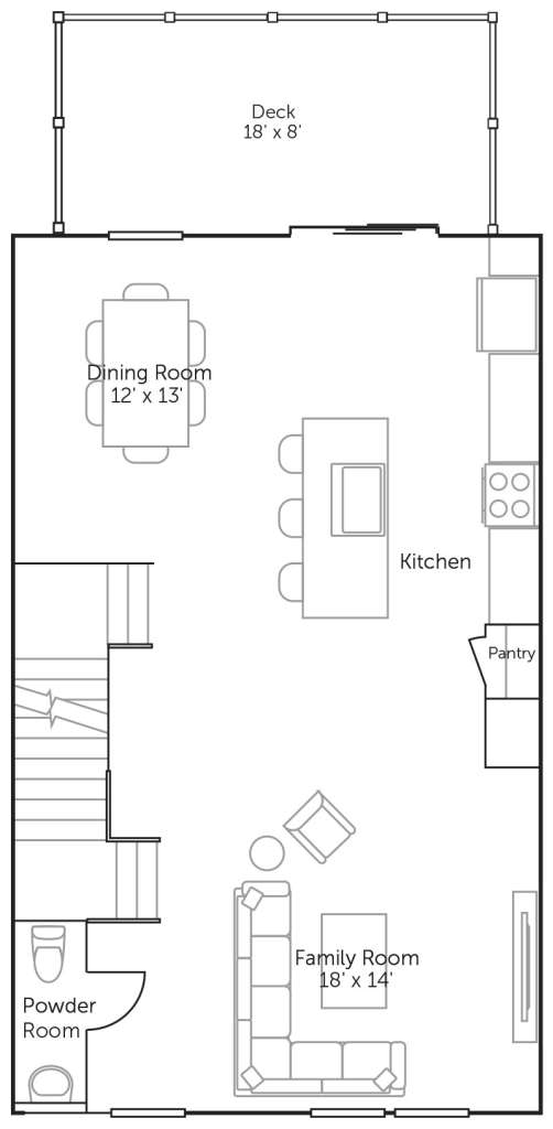
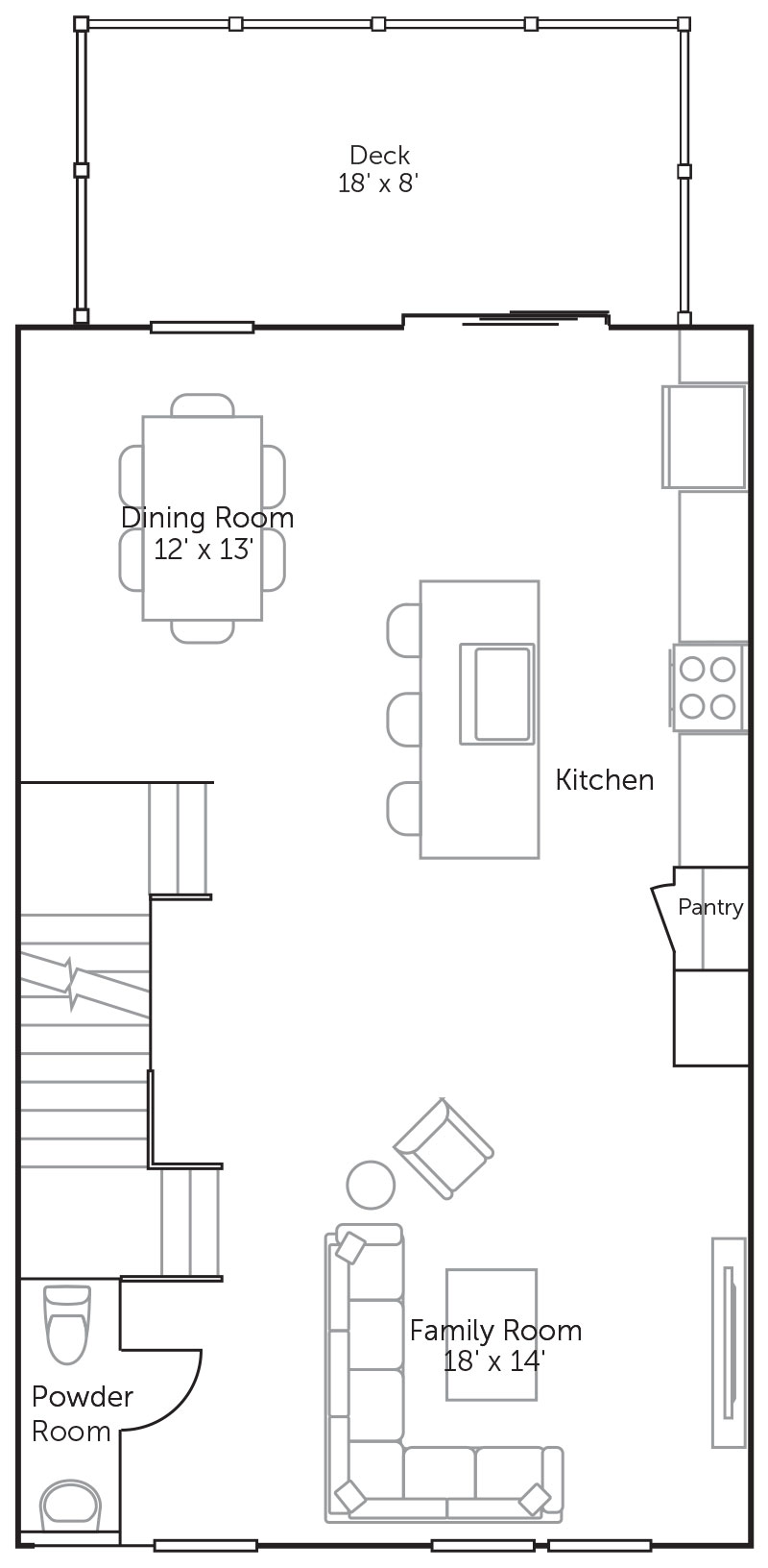
Floor Plans
Tennyson
2 Car Rear Entry Garage
2,368 SF | 3 bedroom | 2.5 Bath
A rear load two car garage layout with an extra-wide living level and well-sized bedroom layouts.
Key Features
- Entry Level
- Recreation Room
- Rear-entry two car garage
- Main Level
- Family Room
- Dining Room
- Kitchen with oversized island
- Powder Room
- Pantry
- Bedroom Level
- Owner’s suite with walk-in closet and private bath
- Bedroom 2
- Bedroom 3
- Second full bath
- Laundry with washer and dryer
